Longwood Towers - Brookline Condos and Apartments
20 Chapel
Brookline, Massachusetts
Longwood Towers - Brookline Condos and Apartments
20 Chapel
-
Brookline, Massachusetts
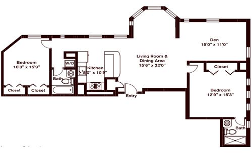
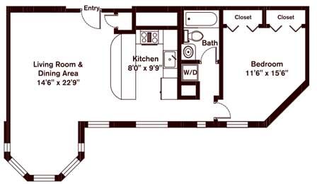
Building Description
One of the most impressive condo buildings in all of Brookline, MA features beautiful condos for sale and luxury apartments for rent. The property is located steps from Longwood Medical and a few blocks from Coolidge Corner. Public transportation is across the street. The building features:
•Kitchens with stainless appliances, granite and custom cabinets
•Hardwood floors
•Marble baths with heated floors
•In-unit washer & dryer
•Central air and heat
•City views
•Custom closet organizers
•Balconies/patios in select units
•Breakfast bar
•Bay windows
•Crown molding
•Recessed lighting
•Internet and cable ready
•Grand lobby with 20’ ceilings
•Wi Fi in lobby and community room
•Wheelchair accessibility
•Classic architecture
•Landscaped courtyard
•Elevators
•Fitness center
•Community room
•Laundry room
•Business center
•On-site management
•24-hr maintenance
•Valet parking
•Concierge
•24-hour doorman
•No pets allowed
•Steps to D Line
•Walk to Longwood Medical
•Minutes to Route 9 and Mass Pike
Additional Details
Zip Code: 02446
Type: Building
Building Amenities and Features
- Dishwasher
- Disposal
- Microwave
- Washer/Dryer
- Carpeted Floors
- Hardwood Floors
- Air Conditioning
- Cable/Satellite TV
- Elevator
- Doorman/concierge
- Gym
- Outdoor space
- Valet Parking
- City Views
- Skyline Views
Receive listing updates in Longwood Towers - Brookline Condos and Apartments
Listings.
-
for sale
(3)3 Units for sale
Average asking price: $1,025/sqft
Unit Price Beds/Baths Sqft Price/Sqft Maint
B811 $2,500,000 4 / 4 2463 $1,015/ft $2,653
B712 $1,349,000 2 / 2 1177 $1,146/ft $1,568
A 303 $699,000 1 / 1 795 $879/ft $766 -
for rent
(1)1 Unit for rent
Average asking price: $5/sqft
Unit Price Beds/Baths Sqft Price/Sqft Maint
B801 $3,500 1 / 1 764 $5/ft -- -
pending
(1)Unit Price Beds/Baths Sqft Price/Sqft Maint
APH4 $2,500,000 3 / 3 1810 $1,381/ft $2,567 -
sold/
rented (129)Unit Price Beds/Baths Sqft Price/Sqft Maint
CS2 $2,800,000 -- 5522 $507/ft $3,774
CS1 $2,400,000 -- 5560 $432/ft $3,070
C901 $2,450,000 3 / 3.5 2458 $997/ft $2,341
BPH5 $1,825,000 2 / 2 1511 $1,208/ft $1,723
B807 $1,695,000 2 / 2 1555 $1,090/ft $1,482
C1005 $1,675,000 2 / 2 1515 $1,106/ft $1,729
B509 $1,400,000 3 / 2 1741 $804/ft $1,644
C411 $1,280,000 2 / 2 1141 $1,122/ft $1,219
B712 $1,300,000 2 / 2 1178 $1,104/ft $1,053
C612 $1,249,000 2 / 2 1179 $1,059/ft $995
B504 $1,045,000 2 / 1 943 $1,108/ft $956
B607 $1,050,000 2 / 1 992 $1,058/ft $956
B1004 $930,000 2 / 1 945 $984/ft $960
B-704 $925,000 2 / 1 945 $979/ft $960
B604 $919,000 2 / 1 945 $972/ft $896
A907 $910,000 1 / 1 800 $1,138/ft $1,071
B607 $875,000 2 / 1 992 $882/ft $991
A503 $840,000 1 / 1 780 $1,077/ft $613
B801 $790,000 1 / 1 764 $1,034/ft $694
Belden-304 $770,000 2 / 1 897 $858/ft $591
B603 $745,000 1 / 1 742 $1,004/ft $627
B909 $745,000 1 / 1 764 $975/ft $764
B306 $685,000 1 / 1 732 $936/ft $560
B606 $600,000 1 564 $1,064/ft $504
C505 $618,000 1 / 1 566 $1,092/ft $525
C506 $595,000 1 564 $1,055/ft $548
C305 $589,000 1 / 1 727 $810/ft $467
B1006 $538,000 1 564 $954/ft $508
B313 $540,000 1 534 $1,011/ft $381
B305 $430,000 1 549 $783/ft $358
APH5 $10,500 4 / 3 2475 $4/ft --
B811 $10,000 4 / 4 2463 $4/ft --
BPH5 $8,000 2 / 2 1511 $5/ft --
C809 $8,500 3 / 2.5 1711 $5/ft --
PH 07 $6,400 2 / 2 1540 $4/ft --
C907 $5,800 2 / 2 1557 $4/ft --
C907 $5,700 2 / 2 1557 $4/ft --
C1007 $5,500 2 / 2 1561 $4/ft --
C1011 $5,000 2 / 2 1141 $4/ft --
C603 $5,500 2 / 2.5 1553 $4/ft --
B411 $4,900 3 / 2 1141 $4/ft --
A510 $4,850 2 / 2 1055 $5/ft --
C911 $4,800 2 / 2 1132 $4/ft --
C911 $4,800 2 / 2 1132 $4/ft --
C412 $4,800 2 / 2 1176 $4/ft --
A410 $4,750 2 / 2 1150 $4/ft --
A-602 $4,595 2 / 2 1060 $4/ft --
C604 $4,750 2 / 2 945 $5/ft --
C607 $5,000 2 / 2 1000 $5/ft --
B411 $4,500 3 / 2 1141 $4/ft --
B404 $4,400 2 / 1 945 $5/ft --
A410 $4,400 2 / 2 1150 $4/ft --
A410 $4,200 2 / 2 1150 $4/ft --
B704 $4,500 2 / 1 945 $5/ft --
B511 $4,200 2 / 2 1141 $4/ft --
A410 $4,200 2 / 2 1150 $4/ft --
B404 $4,200 2 / 1 945 $4/ft --
C607 $4,200 2 / 2 1000 $4/ft --
A603 $4,100 1 / 1 792 $5/ft --
C607 $4,100 2 / 2 1000 $4/ft --
B607 $4,000 2 / 1 992 $4/ft --
B704 $4,000 2 / 1 945 $4/ft --
B712 $4,000 2 / 2 1178 $3/ft --
B309 $3,950 2 / 2 1115 $4/ft --
B1007 $3,900 2 / 1 992 $4/ft --
C508 $3,800 1 / 1 791 $5/ft --
BPH7 $3,750 1 / 1 800 $5/ft --
B909 $3,900 1 / 1 764 $5/ft --
C601 $3,990 1 / 1.5 832 $5/ft --
A503 $3,600 1 / 1 780 $5/ft --
B303 $3,900 2 / 1 1178 $3/ft --
B304 $3,500 2 / 1 897 $4/ft --
C807 $3,500 1 / 1 815 $4/ft --
A303 $3,500 1 / 1 795 $4/ft --
C601 $3,500 1 / 1.5 832 $4/ft --
C807 $3,500 1 / 1 815 $4/ft --
B904 $3,400 1 / 1 772 $4/ft --
B311 $3,300 1 / 1 710 $5/ft --
C807 $3,300 1 / 1 815 $4/ft --
B601 $3,100 1 / 1 764 $4/ft --
B701 $3,300 1 / 1 764 $4/ft --
B303 $3,300 2 / 1 1178 $3/ft --
A503 $3,300 1 / 1 780 $4/ft --
B405 $3,250 1 / 1 566 $6/ft --
B1005 $3,200 1 / 1 566 $6/ft --
C309 $3,250 1 / 1 779 $4/ft --
B904 $3,250 1 / 1 772 $4/ft --
C505 $3,100 1 / 1 566 $5/ft --
B 803 $3,200 1 / 1 742 $4/ft --
B1005 $3,200 1 / 1 566 $6/ft --
A907 $3,200 1 / 1 800 $4/ft --
B405 $3,200 1 / 1 560 $6/ft --
C605 $3,000 1 / 1 566 $5/ft --
B502 $3,200 1 / 1 792 $4/ft --
C807 $3,200 1 / 1 815 $4/ft --
B502 $3,100 1 / 1 792 $4/ft --
B801 $3,100 1 / 1 764 $4/ft --
B311 $3,100 1 / 1 710 $4/ft --
B409 $3,050 1 / 1 764 $4/ft --
B802 $3,050 1 / 1 792 $4/ft --
BPH1 $3,000 1 / 1 764 $4/ft --
B402 $3,000 1 / 1 792 $4/ft --
C405 $3,000 1 / 1 566 $5/ft --
B409 $3,000 1 / 1 764 $4/ft --
B402 $3,000 1 / 1 792 $4/ft --
703A $3,000 1 / 1 781 $4/ft --
B602 $2,995 1 / 1 792 $4/ft --
B701 $3,050 1 / 1 764 $4/ft --
B307 $2,900 1 / 1 849 $3/ft --
B $2,900 1 549 $5/ft --
C311 $2,900 1 / 1 866 $3/ft --
B $2,900 1 549 $5/ft --
B609 $2,850 1 / 1 764 $4/ft --
A308 $2,850 1 / 1 785 $4/ft --
C405 $2,850 1 / 1 566 $5/ft --
B406 $2,800 1 / 1 564 $5/ft --
B606 $2,800 1 / 1 564 $5/ft --
B402 $2,800 1 / 1 792 $4/ft --
B801 $2,800 1 / 1 764 $4/ft --
B313 $2,800 1 534 $5/ft --
B706 $2,750 1 / 1 581 $5/ft --
C506 $2,750 1 590 $5/ft --
B307 $2,700 1 / 1 849 $3/ft --
B706 $2,650 1 / 1 581 $5/ft --
B605 $2,600 1 / 1 566 $5/ft --
C706 $2,600 1 565 $5/ft --
C308 $2,600 1 / 1 683 $4/ft --
C309 $2,600 1 / 1 779 $3/ft --
B706 $2,600 1 / 1 581 $4/ft --
Location
Get Directions 20 Chapel, Brookline MA, 02446
Request more Information or schedule a tour of:
Longwood Towers - Brookline Condos and Apartments Brookline, Massachusetts
When you are ready, please contact us and we will put our unrivaled knowledge of the Boston real estate market to work for you. Whether you are purchasing a luxury home, condo or renting an apartment, we pledge to make your experience as stress free and enjoyable as possible.
For prompt, expert service and answers to all your questions, please send us a message or call anytime at
617-233-5800
